この物件の募集は終了しました。

サンヴェール森山 105号室の過去掲載物件情報

-

管理・共益費
4,000円
敷金
-
礼金
-

電話アイコン 076-222-1111

WALL ART LIFE 空間自体がART

時間と光で変化する、ヨーロッパ生まれのART WALLと暮らす部屋。 壁一面がART。と言っても、絵画ではありません。普通の壁紙では不可能な、立体ARTです。ヨーロッパ生まれのこのARTを、贅沢に部屋の壁一面に設置いたしました。夕焼け、夜の照明、朝の光。時間と共に、光によって表情も変化するこの部屋は、どんな楽しみ方もできます。この部屋何?!と、訪れた友人も驚くはず。まるで、モノクロ映画の世界のようなこの部屋で、ART WALLの迫力を是非堪能してください。

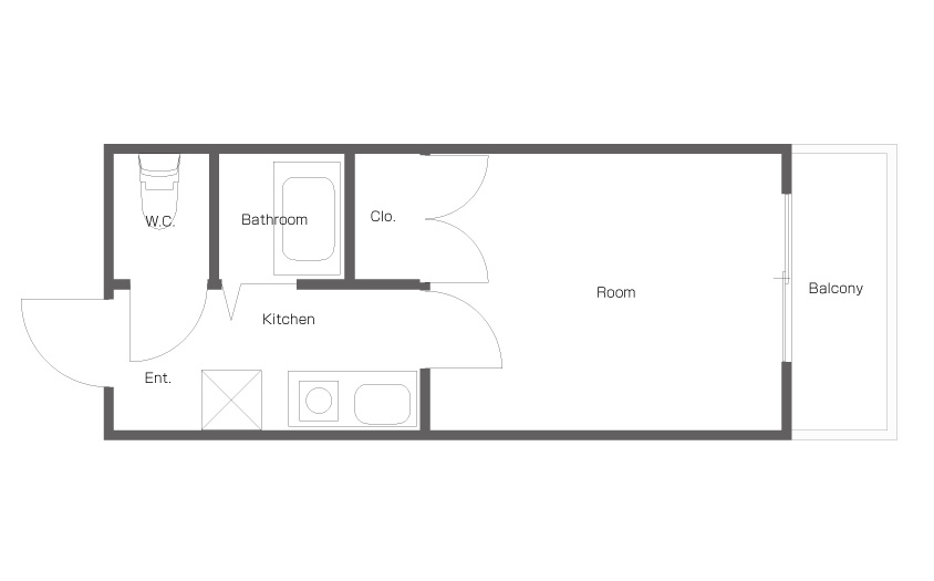
間取り
1K
向き
所在地
石川県金沢市森山1丁目15-5
管理 / 共益費
4,000円
専有面積
23.30㎡
築年月
1991年3月(築35年)
交通

IRいしかわ鉄道金沢」駅 バス17分 石川県金沢市「森山1丁目」 停歩2分

MAP 地図

SELLING POINT セールスポイント

洋間に、立体感のある立体ARTタイルを使用!!流線型の流れるデザインタイルをアクセントに白とグレーの2色でデザイン!男性にも女性にも好まれるお部屋となっております。設備も充実。デザインされたお部屋で一人暮らしを始めてみませんか☆

INFORMATION 基本情報

所在階 / 階建て
1階 / 3階建
建物構造
鉄骨造
種別
賃貸マンション
現況
居住中
入居可能時期
-

OTHERS その他

契約期間
2年
賃貸区分
一般
取引態様
代理
物件番号
91872481
管理コード
114
情報更新日
2026年02月24日
次回更新予定日
2026年03月06日

CONTACT この物件のお問い合わせ

お問い合わせの内容 任意
お名前 必須
フリガナ 必須
メールアドレス 必須
電話番号 任意
備考 任意

SHOP 物件を取り扱う店舗

株式会社クラスコ

株式会社クラスコ

免許番号
国土交通大臣 (3) 第8818号
住所
石川県金沢市西念4丁目24-21 
TEL
076-222-1111

お客様のご要望に応じた最適な物件をご紹介いたします。
まずはお気軽にご相談ください!

お問い合わせはこちら