IDEAL SOUTH 502号室

4.3万円

管理・共益費
3,000円
敷金
0ヶ月
礼金
0ヶ月

電話アイコン 076-241-2121

WAREHOUSE LIFE TYPE BRICK 自分専用倉庫

非日常空間に住む 住宅とは違い、飾り気のない倉庫。ソリッドな佇まいが生み出す重厚な雰囲気は非日常的。これまでの年月を肌に感じるような素材の数々。単に「新しければ良し」ではない。そこに自分ならではの生活感を加える。媚びない人生を歩むにふさわしい場所。

賃料
4.3万円
敷金(保証金)
0ヶ月(-)
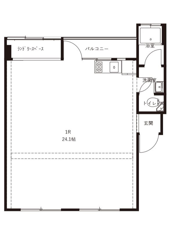
間取り
1R
向き
所在地
石川県金沢市光が丘2丁目229-7
管理 / 共益費
3,000円
礼金
0ヶ月
専有面積
53.05㎡
築年月
1971年11月(築54年)
交通

IRいしかわ鉄道金沢」駅 バス45分 北陸鉄道「金沢国際ホテル前」 停歩2分

PANORAMA パノラマ

MAP 地図

SELLING POINT セールスポイント

山側環状線近くで生活便の良い場所。階数の高いお部屋から見える景色は昼・夜ともにGOOD!
開放感あるリノベーション物件や、DIYをしてカスタマイズができるお部屋があります!

INFORMATION 基本情報

所在階 / 階建て
5階 / 5階建
建物構造
鉄筋コンクリート
種別
賃貸マンション
現況
空家
入居可能時期
即時
設備条件
  • デザイナーズ / リフォーム済 / リノベーション済 / 保証人不要 / 室内洗濯機置場 / ベランダ / 都市ガス / 照明器具付き / バス・トイレ別 / 温水洗浄便座 / 独立洗面台 / エアコン / TVモニタ付インターホン

OTHERS その他

契約期間
2年
賃貸区分
一般
取引態様
代理
物件番号
91839903
管理コード
5009
情報更新日
2025年11月04日
次回更新予定日
2025年11月18日

CONTACT この物件のお問い合わせ

お問い合わせの内容 任意
お名前 必須
メールアドレス 必須
電話番号 任意

SHOP 物件を取り扱う店舗

株式会社クラスコ

株式会社クラスコ

免許番号
国土交通大臣 (3) 第8818号
住所
石川県金沢市西念4丁目24-21 
TEL
076-241-2121

お客様のご要望に応じた最適な物件をご紹介いたします。
まずはお気軽にご相談ください!

お問い合わせはこちら